Одобрение на проекта120.01.2023 Разрешение за строеж2 Строителна линия3 Изкопни дейности4 Груб строеж5 Акт 146 Довършителни работи7 Акт 158 Акт 16​9

Показаните резултати са за Етаж 2

Етаж Вид Обект Площ кв.м Цена € Изложение Статус Виж
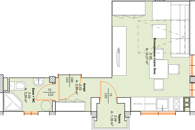
Етаж 2Тристаен Апартамент № 16114,74 кв.м Запад СвободенВиж

Добре дошли Бургас билдинг

Малка история

текст

текст

Reservation

" Разгледайте нашите предложения "

Автор

Phone

+359

Email

@demolution.net

Локация

Бургас